Traumhaft wohnen im grünen Junkersdorf

Möbliertes Einfamilienhaus in ruhiger Toplage von Junkersdorf – mit hellem Wohnbereich, komplett ausgestatteter Küche, Arbeitsplatz im Schlafzimmer und kleinem Garten, ideal für komfortables Wohnen auf Zeit.

Ort

Köln

Ortsteil

Junkersdorf

Objekt ID

Fra_20ZW

Ein charmantes Zuhause auf Zeit – hell, liebevoll eingerichtet und wunderbar ruhig.

Wohnfläche

180 m²

Zimmer

2,5

Miete

VERMIETET

Beschreibung

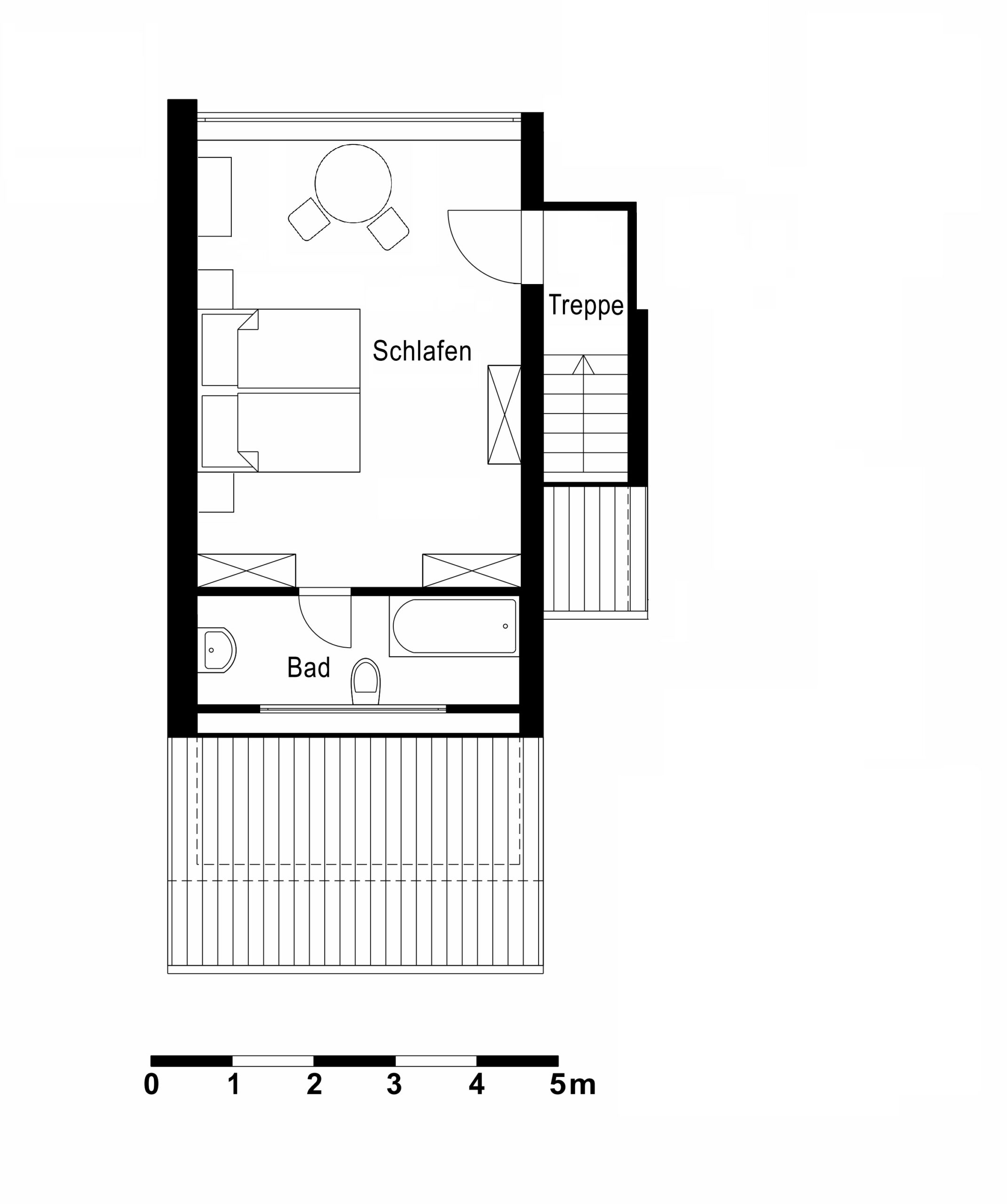
Dieses kleine, ausgesprochen gepflegte Einfamilienhaus liegt in einer der schönsten Straßen von Köln-Junkersdorf und verbindet zeitgemäßes Wohnen mit gemütlichem Charme. Über zwei Etagen erstreckt sich ein sehr angenehm geschnittener Grundriss, der für ein harmonisches Raumgefühl sorgt. Das Haus wird vollständig möbliert vermietet – Sie können direkt einziehen und sich wohlfühlen. Ein eigener Außenstellplatz steht vor dem Haus zur Verfügung. Der kleine, grüne Garten bietet eine erstaunlich intime Rückzugsmöglichkeit mitten im beliebten Stadtteil.

Highlights

  • Heller Wohn-/Essbereich mit Blick ins Grüne

  • Geschmackvolle Möblierung, bezugsfertig

  • Komplett ausgestattete Küche

  • Gäste-WC mit Dusche im Erdgeschoss

  • Großzügiges, lichtdurchflutetes Schlafzimmer

  • Tageslichtbad mit Dusch-Badewanne

  • Terrasse und kleiner Garten

  • Waschmaschine & Trockner im Keller

  • Eigener Außenstellplatz

  • Sehr gute Verkehrsanbindung

Bildergalerie & Grundriss

Lage

Köln-Junkersdorf zählt zu den begehrtesten Wohnlagen im Kölner Westen. Umgeben vom Grüngürtel bietet der Stadtteil ein hohes Maß an Lebensqualität: vielfältige Sport- und Freizeitangebote, ruhige Wohnstraßen, schöne Ein- und Mehrfamilienhäuser sowie eine lebendige, charmante Atmosphäre. In unmittelbarer Nähe liegen die Deutsche Sporthochschule, das RheinEnergieSTADION und zahlreiche Cafés und Restaurants. Die Kölner Innenstadt ist mit der Straßenbahn in etwa 15 Minuten erreichbar, die Haltestelle befindet sich nur wenige Gehminuten entfernt. Auch die Anbindung an das Autobahnkreuz Köln-West und den Flughafen Köln/Bonn ist ausgezeichnet. Geschäfte des täglichen Bedarfs finden sich im Zentrum Junkersdorfs in kurzer Distanz.

Sonstiges

Interessiert an diesem Objekt?

Wir sind für Sie da – engagiert und kompetent! 

Jetzt unverbindlich Kontakt aufnehmen!