Exklusive Stadtvilla mit Pool und Garten

7-Zimmer-Villa mit 344 m² Wohnfläche, hochwertiger Ausstattung, großzügigem Wohn-Essbereich, Bulthaup-Küche, Fitnessraum, Terrasse und Swimmingpool – ruhig gelegen direkt am Rautenstrauchkanal, kombiniert mit bester Anbindung an die Kölner Innenstadt.

Ort

Köln

Ortsteil

Lindenthal

Objekt ID

104209428

Luxus-Stadtvilla mit Pool und Traumgarten in Lindenthal

Wohnfläche

344 m²

Zimmer

7

Miete

VERMIETET

Grundstücksfläche ca. 895 m²

Beschreibung

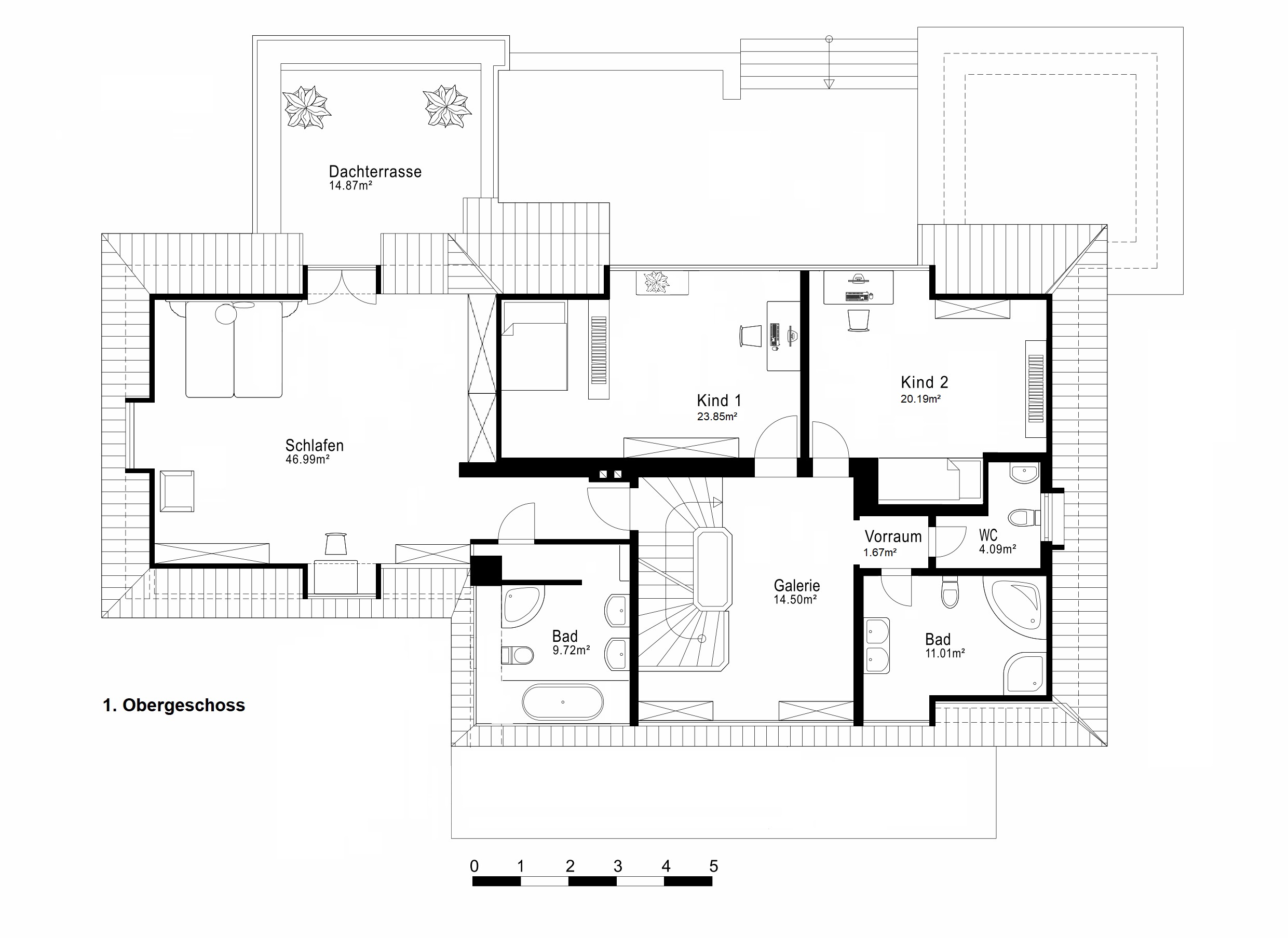
Die freistehende Stadtvilla liegt auf einem ca. 900 m² großen Eckgrundstück, eingebettet in alten Baumbestand, direkt am Rautenstrauchkanal. Auf zwei Etagen und einem ausgebauten Dachstudio bietet das Anwesen großzügige 344 m² Wohnfläche. Die südlich ausgerichtete Terrasse und der traumhafte Garten mit Swimmingpool laden zum Entspannen ein. Das ausgebaute Untergeschoss umfasst zusätzliche Nutzfläche, darunter einen 47 m² großen Fitnessraum mit Tageslicht, einen Weinkeller und eine voll ausgestattete Waschküche.

Die Villa überzeugt durch exklusive Ausstattung: Marmorboden im Eingangsbereich, offene Bulthaup-Küche mit Miele- und Gaggenau-Geräten, offener Kamin, zwei Whirlpoolbadewannen, Alarmanlage, elektrische Rollläden und zahlreiche Einbauschränke. Die Garage liegt direkt angrenzend, und das Grundstück ist durch Mauern und ein schmiedeeisernes Gitter eingefasst, wodurch die Privatsphäre gewahrt bleibt.

Highlights

  • 7 Zimmer, 3 Badezimmer, Gäste-WC

  • Wohnfläche: 344 m², Nutzfläche: 110 m²

  • Großzügiger Wohn- und Essbereich (87 m²)

  • Bulthaup-Küche mit hochwertigen Geräten

  • Offener Kamin

  • Zwei Whirlpoolbadewannen

  • Fitnessraum 44 m² mit Tageslicht und Geräten

  • Weinkeller mit Weinkühlschrank

  • Südlich ausgerichtete Terrasse und Garten mit Außenpool (4,5 x 8,5 m, Naturstein-Hubboden)

  • Alarmanlage, elektrische Rollläden

  • Garage und private Einfahrt

Bildergalerie & Grundriss

Lage

Lindenthal zählt zu den begehrtesten Stadtteilen Kölns. Ruhig und grün, geprägt von Villen, großzügigen Wohnvierteln und Parks. Die Dürener Straße mit ihren hochwertigen Geschäften, Restaurants und Cafés ist nur wenige Gehminuten entfernt. Schulen, Kindergärten, Arztpraxen und Einkaufsmöglichkeiten liegen in unmittelbarer Nähe. Optimale Anbindung an den öffentlichen Nahverkehr sowie schnelle Erreichbarkeit der Innenstadt, Autobahnkreuze und des Flughafens Köln/Bonn runden die Lage ab.

Sonstiges

Gerne senden wir Ihnen ein ausführliches Exposé zu. Bitte geben Sie dafür Ihre vollständigen Kontaktdaten auf dem Kontaktformular an.

 

Die angegebenen Informationen sowie jegliche Objektunterlagen sind ohne Gewähr und basieren ausschließlich auf Angaben der Eigentümer. Wir übernehmen keine Gewähr für die Richtigkeit, Aktualität und Vollständigkeit. Zwischenvermarktung und Irrtum bleiben vorbehalten

Interessiert an diesem Objekt?

Wir sind für Sie da – engagiert und kompetent! 

Jetzt unverbindlich Kontakt aufnehmen!